高槻市唐崎中2丁目の新築一戸建
☆全4区画 2025年8月完成☆
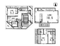
LDK広々約16帖!
ウォークインクローゼット2ヶ所有♪
全居室収納有り、お部屋をすっきりとお使いいただけます!
-
ローンシミュレーションこの物件を購入した場合の、月々の支払い価格の一例です。借り入れを保証するものではございません。
- 返済期間
-
- 金利
-
- ボーナス時の増額(1回分)
-
- 借入金額:
-
- 頭金:
-

- 毎月の返済額:
(※元利均等方式 金利5.00%まで ※返済年数5~50年まで入力できます)
(※ボーナスは年2回で計算しています。1000万円まで入力できます)
(※物件購入時、その他諸費用が発生する場合がございます)
情報の見方担当者のコメント 太田和恵

- ☆全4区画 2025年8月完成☆
LDK広々約16帖!
ウォークインクローゼット2ヶ所有♪
全居室収納有り、お部屋をすっきりとお使いいただけます!
ポイント・特徴
物件概要
【新築一戸建】 物件番号:94782338 情報更新日:2025年11月24日 次回更新予定日:2025年12月08日所在地 大阪府高槻市唐崎中2丁目 交通 間取り/詳細 4LDK/
LDK 16.0帖/和室 4.5帖/洋室 4.5帖/洋室 6.0帖/洋室 9.5帖建物面積(坪数) 99.98㎡(30.24坪) 価格 3,980万円 駐車場/月額料金 有(2台)/- 土地の敷金/保証金 -/- 借地料/借地期間 -/- 土地権利 所有権 土地面積(坪数) 165.18㎡(49.96坪) 傾斜地部分面積 - 路地状敷地 - 私道負担面積/セットバック -/無 高圧線下面積 - 地目/地勢 宅地/- 接道状況 一方(西 公道 4.1m) 建ぺい率/容積率 50%/100% 用途地域 無指定 都市計画 市街化調整区域 種別/構造 新築一戸建/木造 階建 2階建 築年月(築年数) 2025年 8月 (新築) 総区画数/販売区画数 4区画/2区画 向き - 現況 完成済み その他の法令上の制限 景観法/高度地区/開発制限、法22条区域 取引態様/引渡時期 仲介/相談 建築確認番号 - 物件番号 94782338 取引条件の有効期限 2025年12月08日 設備条件 - 室内洗濯機置場
- フローリング
- バルコニー
- ルーフバルコニー
- 都市ガス
- 公営水道
- 公共下水
- 電気有
- 駐車2台可
- システムキッチン
- 対面式キッチン
- トイレ2ヶ所
- 床下収納
- ウォークインクロゼット
備考 【周辺施設】
高槻市立三箇牧小学校:約2300m(徒歩約29分)
高槻市立第七中学校:約1800m(徒歩約23分)
高槻市立玉川幼稚園:約1600m(徒歩約20分)
マルヤス玉川店:約1500m(徒歩約19分)
セブンイレブン高槻唐崎北店:約820m(徒歩約11分)
※司法書士は売主指定となります。取扱会社 - 株式会社ショウホーム
- 大阪府高槻市天王町1番1号
- TEL:0120-966-753
- 大阪府知事 (1) 第63063号
- 公益社団法人 全日本不動産協会
公益社団法人 不動産保証協会
全日本不動産近畿流通機構
※地図上に表示される物件の位置は付近住所に所在することを表すものであり、実際の物件所在地とは異なる場合がございます。
物件お問い合わせ
同じエリアの新築一戸建
価格と住所の近い物件
- 高槻市淀の原町 新築戸建
- 3,980万円 3LDK/88.59㎡
- 大阪府高槻市淀の原町
- 阪急京都本線「上牧」駅 徒歩9分
- 高槻市竹の内町 新築戸建
- 3,980万円 4LDK/100.64㎡
- 大阪府高槻市竹の内町
- 阪急京都本線「高槻市」駅
- 高槻市永楽町 新築戸建
- 4,080万円 3LDK/90.31㎡
- 大阪府高槻市永楽町
- 阪急京都本線「高槻市」駅
- 高槻市松が丘2丁目 中古戸建
- 3,880万円 4LDK/142.80㎡
- 大阪府高槻市松が丘2丁目
- 東海道本線「高槻」駅
- 高槻市明野町 新築戸建
- 4,080万円 2LDK/114.88㎡
- 大阪府高槻市明野町
- 阪急京都本線「高槻市」駅 徒歩19分

















