高槻市竹の内町 新築戸建の過去掲載物件情報現況の確認はお気軽にお問い合わせください。
| 所在地 | 大阪府高槻市竹の内町 | ||
|---|---|---|---|
| 交通 | |||
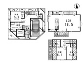
| 築年月(築年数) | 2025年 8月 ( 新築 ) | 種別/構造 | 新築一戸建/木造 |
| 設備条件 |
|
||
他の空物件 高槻市竹の内町 新築戸建詳細はこちら
| 価格 | 間取り | 面積 | 詳細 | 検討リスト |
|---|---|---|---|---|
| 3,680万円 | 3LDK |
93.97㎡ | 詳細を見る | 追加する |
| 3,280万円 | 2LDK +1S(納戸) |
99.48㎡ | 詳細を見る | 追加する |
| 3,280万円 | 3LDK |
80.18㎡ | 詳細を見る | 追加する |
【外観】











